• Progettisti architettonici:
  • Arch. Giusti Arturo
  • Arch. Neri Filippo
  • Arch. Boni Federica
  • Ingegnere:
  • Ing. Giusti Giuseppe
  •  
  • Geologo:
  • Dott. Geol. Battistini Andrea

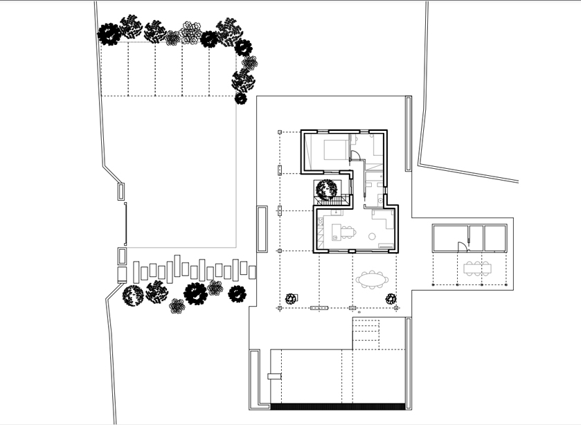
L'intervento in oggetto si svolge su un lotto di terreno di circa 2500 mq coltivato ad uliveto con accesso da strada privata, il progetto prevede la completa ristrutturazione di civile abitazione esistente con ampliamento volumetrico.

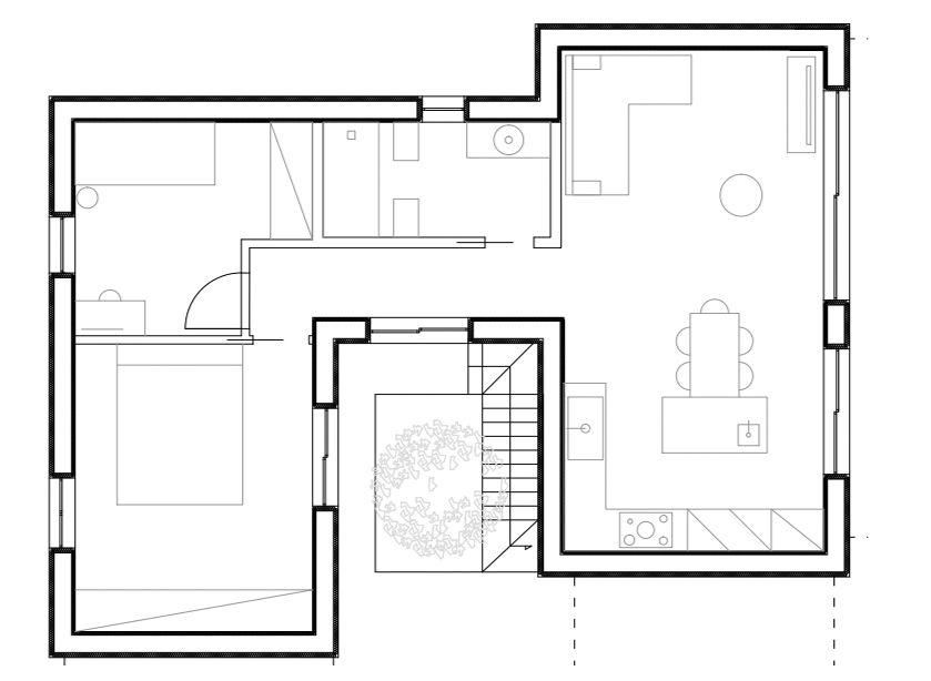
L'edificio di progetto si presenta con una superficie di circa 75 mq, di questi 60 compongono l'edificio principale il quale ospita la zona giorno composta da un open space che unisce soggiorno, pranzo e cucina, e la zona notte composta da 2 camere e un bagno; i restanti 15 mq sono ricavati nella dependance esterna la quale ospita un bagno, un locale deposito e la centrale termica.

Per conformazione l'edificio ospita un'ampia terrazza sopra la zona giorno di circa 35 mq dove viene ricavata una zona relax con pompeiana, sdraie e vasca idromassaggio.

La progettazione architettonica è mirata a uniformare l'edificio con il lotto circostante, creando ampie vetrate verso mare per aprire il più possibile la zona giorno al giardino, mentre le camere sono state posizionate verso monti per dedicargli più riservatezza.

Dalla zona giorno si apre verso l'esterno un ampio pergolato di circa 80 mq il quale ha la funzione di estendere orizzontalmente la casa andando a creare un filtro tra l'esterno e l'interno; questo anticipa anche la piscina da 80 mq con spiaggetta, zona tuffi e idromassaggio, posizionata a sud dell'edificio per ottimizzare l'esposizione solare, la quale si integra perfettamente con l'edificio grazie alla pavimentazione esterna, che grazie a piccoli dislivelli fa in modo di avere una continuità dalla casa alla piscina stessa passando per il portico.

La casa viene progettata seguendo le migliori tecniche costruttive in ambito termotecnico, sarà dotata di cappotto termico sia alle pareti che alle pavimentazioni e coperture, di impianto fotovoltaico e solare termico per raggiungere la completa autonomia di fabbisogno energetico; l'impianto di riscaldamento è alimentato da una pompa di calore e composto da pavimento radiante così da annullare completamente la dipendenza dal gas naturale.

  • Progettisti architettonici:
  • Arch. Giusti Arturo
  • Arch. Neri Filippo
  • Arch. Boni Federica
  • Ingegnere:
  • Ing. Giusti Giuseppe
  • Geologo:
  • Dott. Geol. Battistini Andrea

L'intervento in oggetto si svolge su un lotto di terreno di circa 2500 mq con accesso da strada privata, il progetto prevede la completa ristrutturazione di civile abitazione esistente con ampliamento volumetrico.

L'edificio di progetto si presenta con una superficie di circa 75 mq, di questi 60 compongono l'edificio principale il quale ospita la zona giorno composta da un open space che unisce soggiorno, pranzo e cucina, e la zona notte composta da 2 camere e un bagno; i restanti 15 mq sono ricavati nella dependance esterna la quale ospita un bagno, un locale deposito e la centrale termica.

Per conformazione l'edificio ospita un'ampia terrazza sopra la zona giorno di circa 35 mq dove viene ricavata una zona relax con pompeiana, sdraie e vasca idromassaggio.

La progettazione architettonica è mirata a uniformare l'edificio con il lotto circostante, creando ampie vetrate verso mare per aprire il più possibile la zona giorno al giardino, mentre le camere sono state posizionate verso monti per dedicargli più riservatezza.

Dalla zona giorno si apre verso l'esterno un ampio pergolato di circa 80 mq il quale ha la funzione di estendere orizzontalmente la casa andando a creare un filtro tra l'esterno e l'interno; questo anticipa anche la piscina da 80 mq con spiaggetta, zona tuffi e idromassaggio, posizionata a sud dell'edificio per ottimizzare l'esposizione solare, la quale si integra perfettamente con l'edificio grazie alla pavimentazione esterna, che grazie a piccoli dislivelli fa in modo di avere una continuità dalla casa alla piscina stessa passando per il portico.

La casa viene progettata seguendo le migliori tecniche costruttive in ambito termotecnico, sarà dotata di cappotto termico sia alle pareti che alle pavimentazioni e coperture, di impianto fotovoltaico e solare termico per raggiungere la completa autonomia di fabbisogno energetico; l'impianto di riscaldamento è alimentato da una pompa di calore e composto da pavimento radiante così da annullare completamente la dipendenza dal gas naturale.